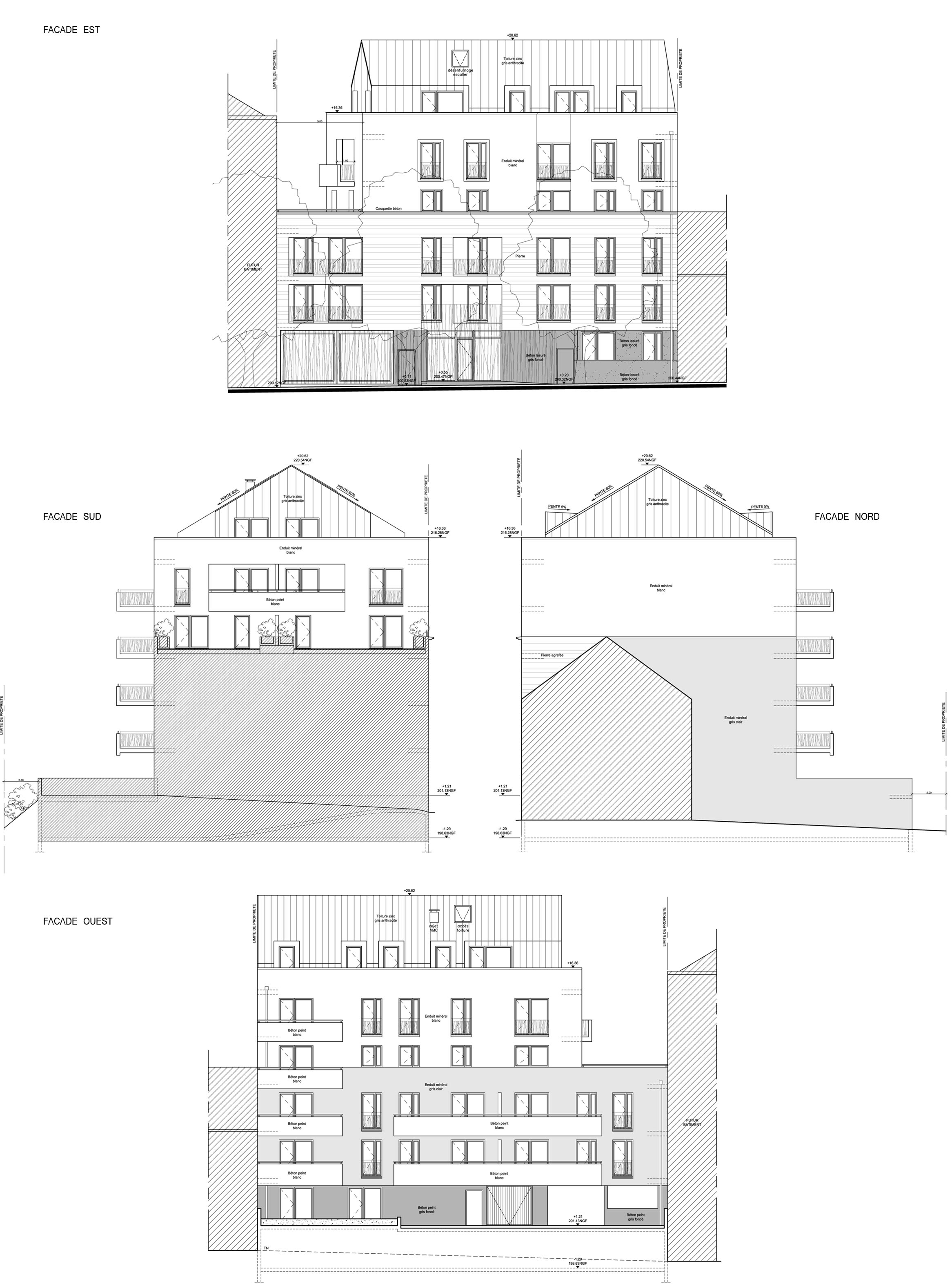
« logements avenue marlioz »
MAITRE D’OUVRAGE : alter ego
ARCHITECTE MANDATAIRE : CHAMBRE ET VIBERT – CHAMBÉRY
DATE : 2010
MISSION : construction de logements avenue marlioz a aix les bains
PHASES : ESQUISSE-APD-PC
ROLE PERSONNEL SUR LE PROJET : ASSISTANTE CHEF DE PROJET
Projet



Laisser un commentaire