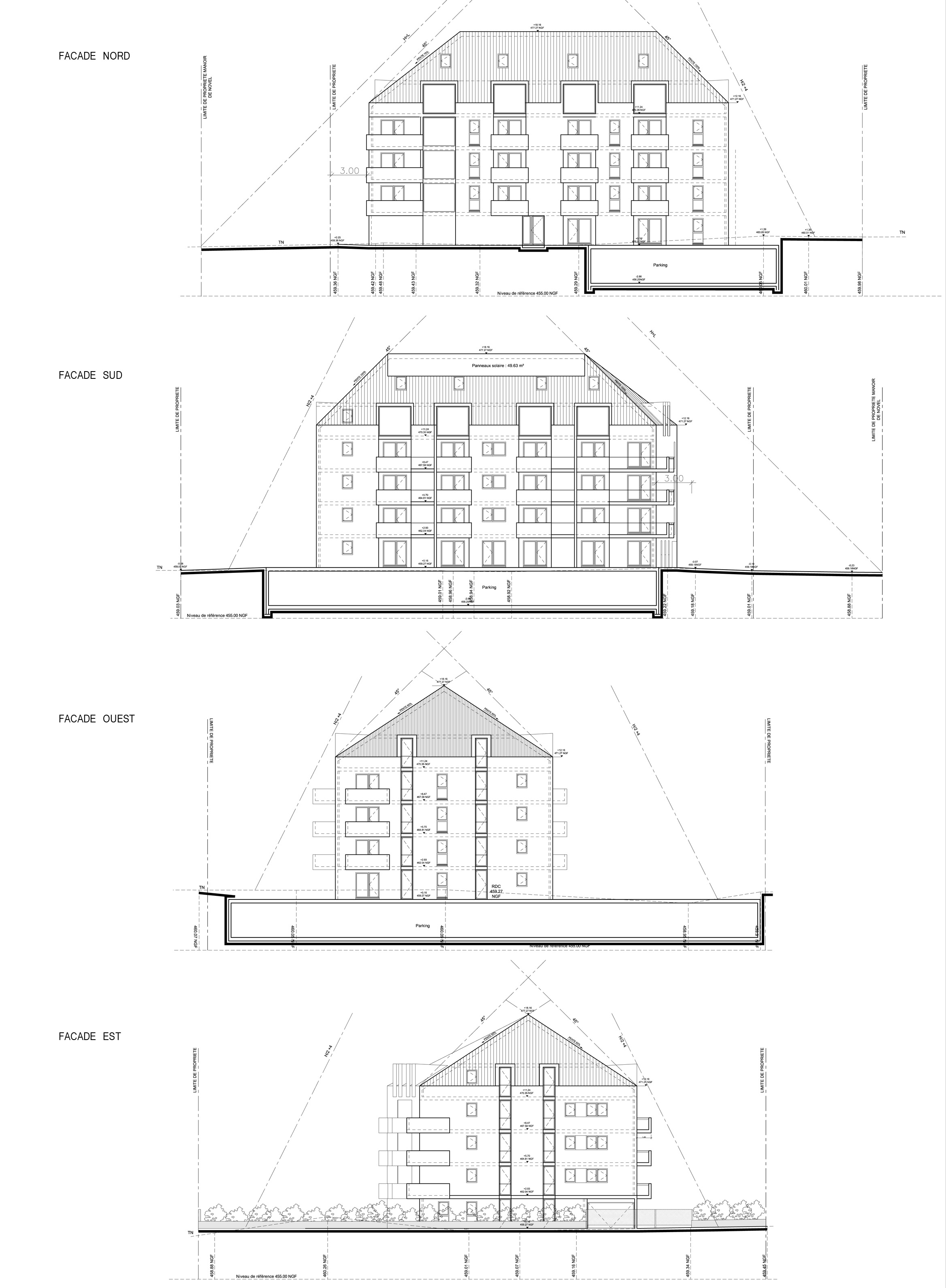
« LOGEMENTS AVENUE de novel »
MAITRE D’OUVRAGE : imaprim
ARCHITECTE MANDATAIRE : CHAMBRE ET VIBERT – CHAMBÉRY
DATE : 2010
MISSION : CONSTRUCTION DE LOGEMENTS AVENUE de novel a annecy
PHASES : ESQUISSE-PC
ROLE PERSONNEL SUR LE PROJET : assistante CHEF DE PROJET
Projet



Laisser un commentaire