« Saint-Denis / Saint-Ouen »
MAITRE D’OUVRAGE : cg93 & Eiffage
SURFACE : 5000 m2
STATUT : livré en Aout 2014
PROGRAMME : PPP d’un collège
BUDGET : 15 millions €
PHASES : concours-aps-apd-pc-pro-dce-chantier-doe
Face à la mutation de nos sociétés qui s’accélère, l’éducation est un enjeu qui nous impose de nous remettre en question. La période est à la fois plus ouverte et plus multiple ; en même temps que la congestion toujours plus importante nécessite de réguler toujours plus les comportements. Le collégien est aujourd’hui au centre de ces mutations. Il accède plus rapidement que ses ainés aux nouvelles technologies. Il est à l’âge où les repères sont remis en question. Le collège doit lui permettre d’entrer dans un monde qu’il va lui même modifier et construire, tout en lui donnant une structure qui lui permette d’interagir avec les autres. Nous avons voulu un collège simple, fluide et sûr.
C’est la puissance de l’imagination qui nous permet de nous projeter dans ce que le site va devenir. Aujourd’hui la parcelle n’est que le redécoupage d’une partie de l’installation industrielle de EDF. En même temps cette parcelle justement est symptomatique des nouveaux enjeux auxquels nous devons apporter une réponse. Entre-deux devenirs, à la limite entre de deux communes, elle est ce que nous ferons de demain.
Le sol disponible est rare et c’est particulièrement vrai ici. Nous avons porté notre attention à ce qui devait impérativement se situer au niveau du sol. Nous voulions que les éléments sur la rue soient très accessibles ainsi ils sont limités à un niveau. Les différentes fonctions ont été posées comme des marques, des repères, qui supportent les niveaux d’enseignements. Les éléments programmatiques rythment la rue comme autant de possibles laissant apparaître de profondes transparences. L’enseignement, l’administration ainsi que le CDI aux étages sont réunis dans un ensemble qui franchit et réunit toutes les fonctions.
* suite de la Notice architecturale
* Plan de masse de l’emprise avec le site environnant

* Vue perspective depuis la rue Ampère – Saint-Denis

* Vue perspective depuis la rue Saint-denis -Saint-Ouen

* Plan masse des intentions urbaines

* Plan masse des intentions paysagères

* Storyboard des intentions architecturales

* Principe d’éclairage naturel des niveaux N+1 et N+2

* Vue intérieure du hall depuis le parvis

* Vue intérieure depuis la circulation de N+1 sur la percée verticale

* Vue intérieure du CDI

* Vue intérieure de la salle de restauration

* Vue intérieure de la salle EPS

* Plans du projet : RDC

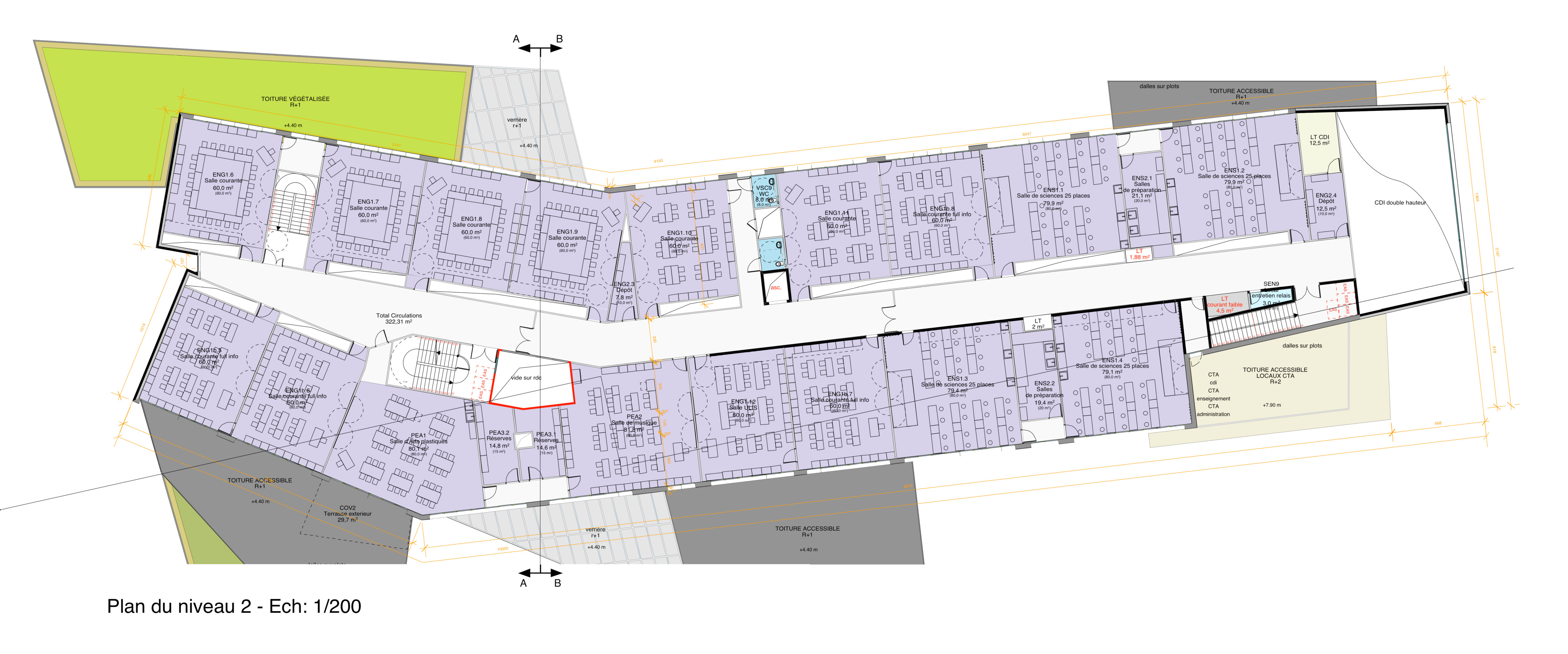
* Plan R+1

* Plan R+2

* Plan de toiture du collège

* Plan de niveau des logements

* Plan des flux

* Coupe de principe des façades Sud

* Façade Sud Ouest sur la salle de sport

* Façade Sud-Ouest du collège

* Coupe transversale BB et façade Sud-Ouest sur le pôle de vie des étudiants

* Coupe transversale AA et façade Nord-Est sur la restauration

* Façade Sud-Est

* Coupe longitudinale

* Façade Nord-Ouest

* Façade Nord-Est sur le CDI

* Plan des flux, accès et du traitement de la sureté

* Plan d’aménagement de la salle de restauration

* Plan d’aménagement des salles de classes banalisées

* Vue depuis la cour de récréation sur le collège

* Vue depuis la salle EPS sur le collège et le CDI

PHOTOS DE CHANTIER
Septembre 2013
Gros-oeuvre : Mise en place des prémurs béton du collège



Février 2014
Gros oeuvre : escaliers, dalles béton …









Juillet 2014
Finitions des différents corps d’états : carrelage, peintures, électricité







Août 2014 - Photographie lors de la livraison du collège Dora Maar
*Vue du Collège Dora Maar depuis la rue ampère à Saint-denis




*vues du préau dans l’enceinte du collège





*Vues intérieures du collège
Circulations verticales :





Circulations horizontales :



Salles de classes : Principe du puits de lumières sur 2 étages afin de permettre l’apport de lumière naturelle en fond de classe et dans les circulations horizontales.




CDI : Salle bénéficiant d’une double hauteur et d’un apport de lumière naturelle très important. Le CDI est positionné en bout de batiment ouvert sur la végétation des gradins extérieurs naturels. Il représente un point d’appel dans la ville.




Laisser un commentaire