« Maison des sciences et de l’environnement »
MAITRE D’OUVRAGE : region ile de france
ARCHITECTE MANDATAIRE : platane et ilic associés – paris
DATE : 2011
MISSION : CONSTRUCTION DE la maison des sciences et de l’environnement de créteil (94)
PHASES : concours – ETAT : sans suite
Role personnel sur le projet : Chef de projet
Projet
EA-Évolutivité et Adaptation
La structure du bâtiment est reportée sur les circulations et les façades. Cela permet de redéfinir les activités au sein des pôles et des plateaux techniques. Les réseaux et les alimentations sont placés au centre des plateaux, ce qui permet de les concentrer et garantir leur pérennité.
La distribution en anneaux, ainsi que l’organisation verticale des réseaux offrent la meilleure garantie d’adaptabilité.
Les caractéristiques bioclimatiques
Les caractéristiques bioclimatiques sont au cœur de la conception architecturale.
– Implantation du bâtiment en fonction du masque d’ombre et des vents dominants ainsi que des risques d’inondations.
– Positionnement des espaces de travail en fonction des besoins et des caractéristiques propres de chaque espace.
– Optimisation des zones chaudes (isolation par l’extérieur, continuité de l’isolation par l’extérieur à l’intérieur de l’atrium, sas thermique…)
– Aménagement des zones de circulation en tant que tampon thermique.
– Caractéristique des façades relatives à leurs orientations (dimension des ouvertures, protections solaires)
Maintenance, Entretien et Pérennité
Tous les équipements sont choisis en fonction des facteurs de dégradation et de vieillissement (durabilité des matériaux et des équipements, impact de la maintenance ou de la non-maintenance sur la qualité du service rendu par ceux-ci, facilité et coûts des opérations nécessaires de maintenance, …).
Tous sont simples et robustes, ils permettent un entretien aisé.
Acoustique
Tous les espaces de travail sont traités de manière à garantir un confort acoustique important, les nuisances qui pourraient émaner de l’espace collectif sont traitées à la fois par l’isolation des parois, mais aussi par la qualité des huisseries.
La couverture
La couverture est de type végétalisé ou recouverte d’une protection lourde afin de garantir une excellente pérennité et de réduire les coûts de maintenance liées a l’exploitation de la terrasse d’expérimentation.
Personnes handicapées
L’accès du bâtiment aux personnes handicapées est facilité. Les dimensions minimum réglementaires sont le plus souvent largement dépassées.
Ondes électriques et champs magnétiques
Les protections des champs magnétiques seront réalisées indépendamment de la structure du bâtiment afin de garantir son efficacité. Une attention particulière sera apportée à la réalisation des planchers anti-vibration en relation avec les appareils de mesures installés .
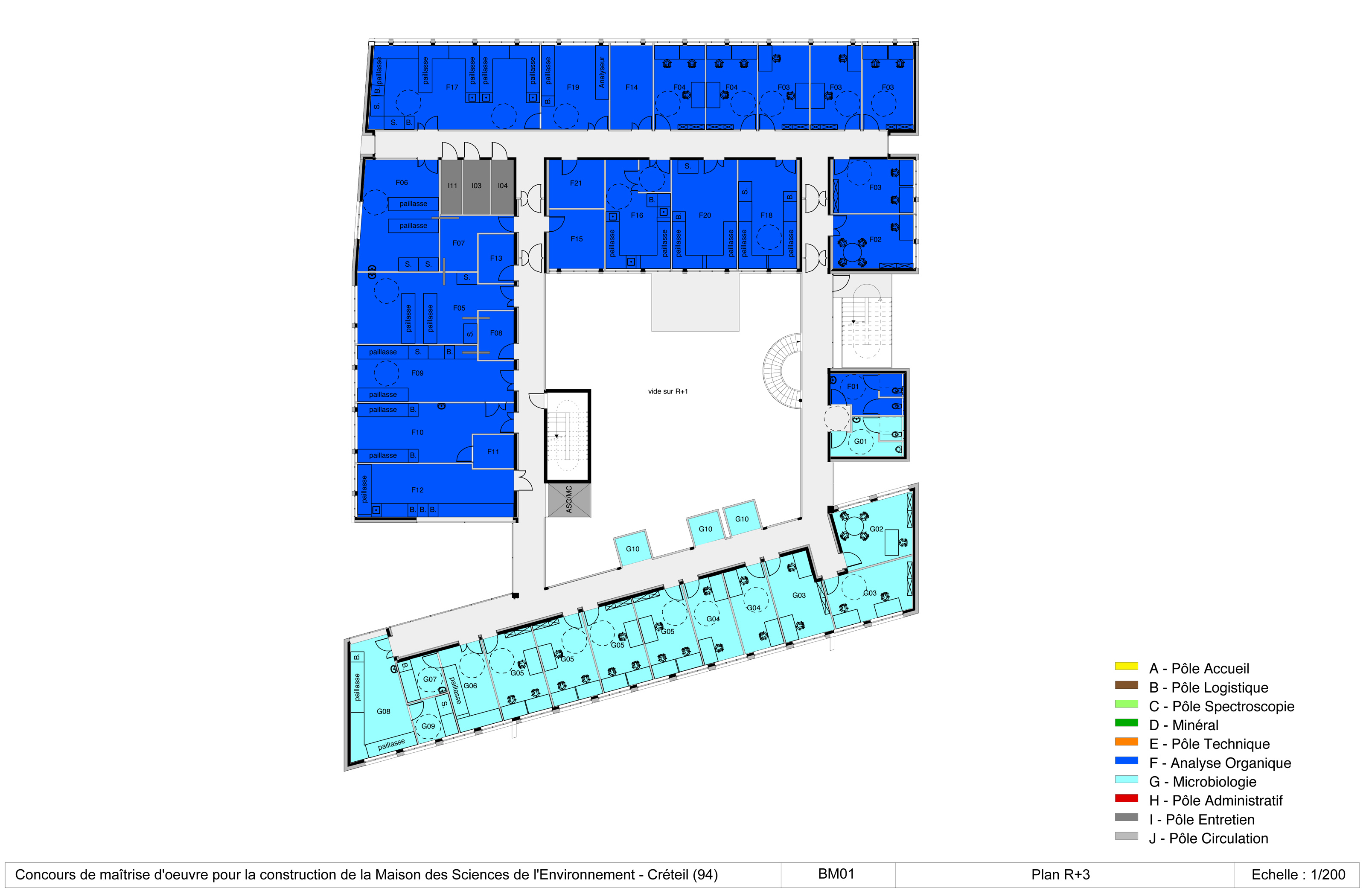
Plans
Coupes
Perspectives










Laisser un commentaire