« CENTRE CHOREGRAPHIQUE DE VITRY »
ATELIER : JACQUES MOUSSAFIR
SEMESTRE : 3.1 – SEPTEMBRE/DECEMBRE 2004 – projet personnel
SYNOPSIS :
Un centre chorégraphique regroupe deux domaines distincts: la danse et la choregraphie. Il représente l’art de la gestuelle et du mouvement. Cependant, il convient de distinguer les caractéristiques propres à chacun des domaines. La DANSE : – sa force réside dans son primitivisme – langage propre à l’humanité dont l’expression varie selon les races mais possède une constante extraordinaire – doit vivre à travers des oeuvres pures, ou il n’y a que du mouvement, sans décors, sans costumes, sans anecdote. La CHOREGRAPHIE : – étape de rencontre entre MUSIQUE et MOUVEMENT – finalité : le ballet ( = élément composite, mode de représentation, de diffusion)PLANS
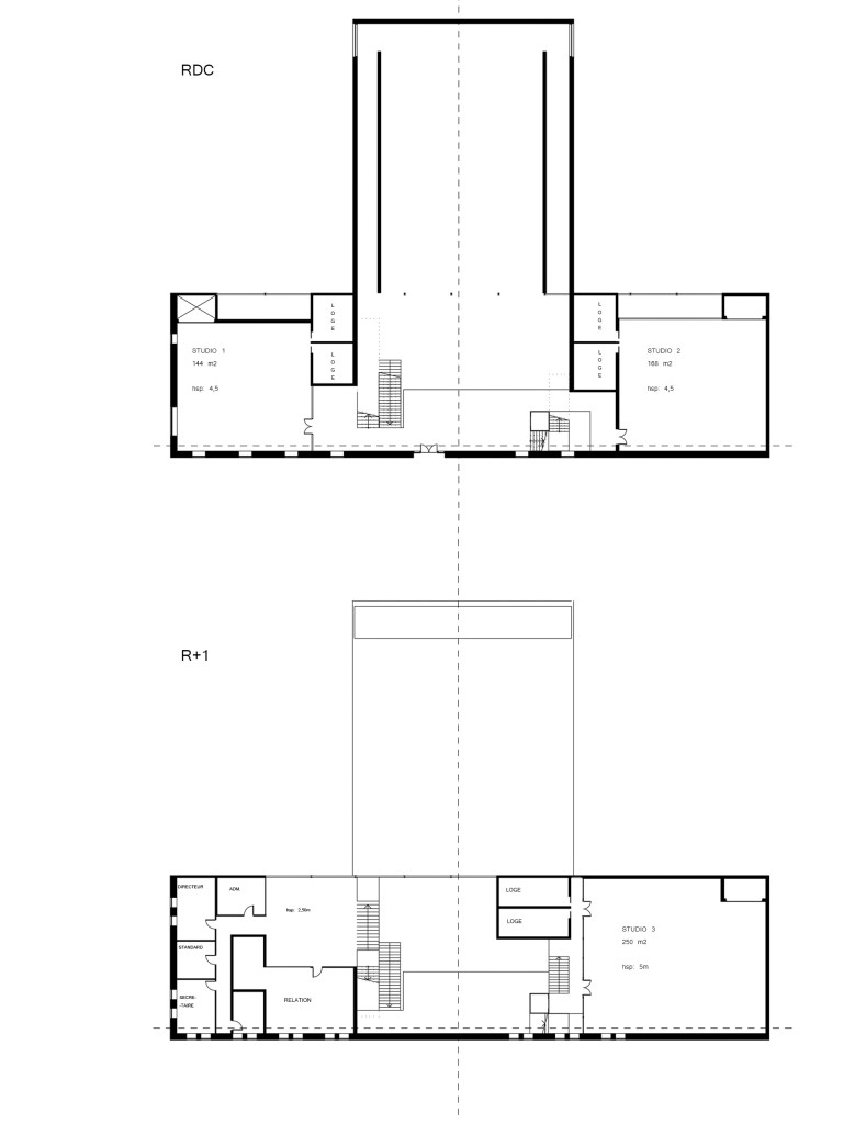
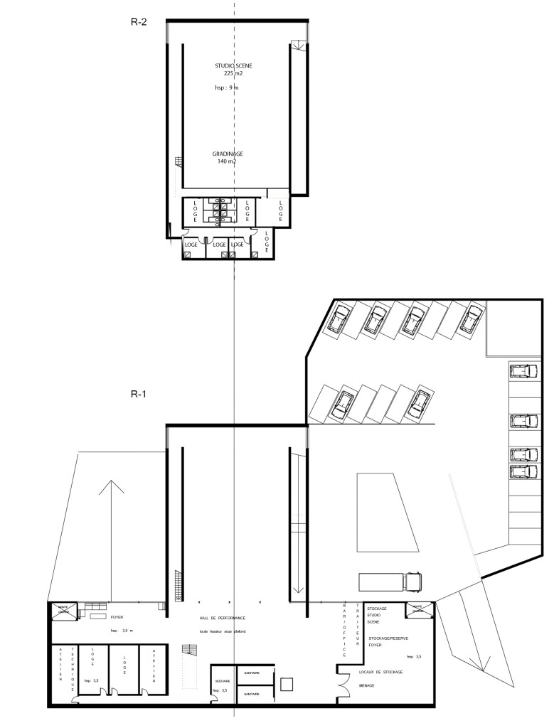
PERSPECTIVE

Laisser un commentaire